e3 ist das erste siebengeschossige Haus mit einer Holzkonstruktion von Kaden Klingbeil Architekten.
Wir haben eine der Küchen gebaut. Die Basis ist die Küchenzeile an der Wand. Die Tresen stehen auf Rollen und können beliebig gestellt werden.
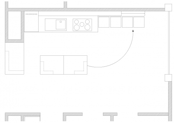
e3 ist das erste siebengeschossige Haus mit einer Holzkonstruktion von Kaden Klingbeil Architekten.
Wir haben eine der Küchen gebaut. Die Basis ist die Küchenzeile an der Wand. Die Tresen stehen auf Rollen und können beliebig gestellt werden.